We use cookies

By using this website, you agree to the use of cookies, which help us provide better services. More info

PREDANÉ BOSEN | Samostatný 3 izbový rodinný dom v Ružinove - Trnávka

Sorry, this offer is no longer valid!

BROKER

Rebeka Jasenecová

real estate agent

+421911343090
jasenecova@bosen.sk


Basic information

County: Bratislavský kraj
Type: Houses
Type: Sale
House type: Family house
Bosen Group Vám ponúkal na predaj slnečný rodinný dom v Ružinove časť Trnávka. 



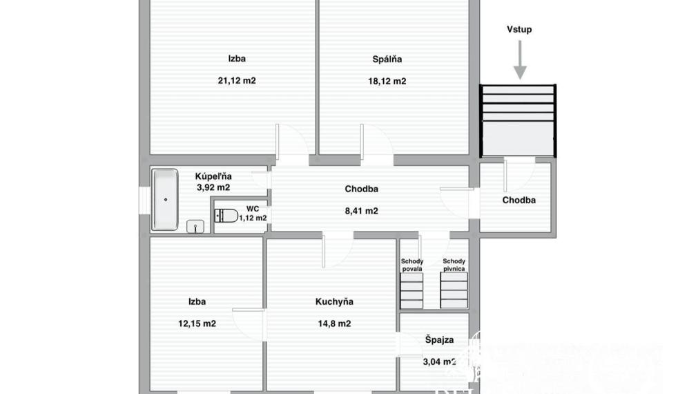
DOM: Rodinný dom bol postavený v roku 1962 a disponuje výmerou 105 m2 úžitkovej plochy a 115 m2 zastavanej plochy. Dom je čiastočne podpivničený - 17,6 m2 a povala je využiteľná ako odkladací priestor. Dom je pravidelne udržiavaný a aktívne vužívaný. Strecha bola menená v roku 2010. Dom disponuje veľmi dobrým dispozičným riešením a krásnou záhradou v tichej lokalite. 



DISPOZÍCIA: Vstupná chodba, vchod do pivnice a na povalu, dve nepriechodné izby, kuchyňa spojená s jedálňou, špajza, z kuchyne sa dostanete do tretej nepriechodnej izby, kúpeľňa, samostatné WC, 



POZEMOK: Pozemok je rovinatý a udržiavaný o celkovej výmere 814m2. Zastavaná plocha predstavuje 115m2 (dom) a 15m2 (garáž). Šírka pozemku predstavuje 20m a dĺžka 41m. V záhrade sa nachádzajú ovocné stromy. 



IS: Dom je napojený na elektrinu vodu a plyn, odpad je riešený žumpou, keďže na danej ulici nieje zavedená kanalizácia.  



PARKOVANIE: Parkovanie je možné pred domom priamo na pozemku alebo v garáži.



LOKALITA: Dom sa nachádza v tichej oblasti medzi záhradami a rodinnými domami v blízkosti Avionu, škôl a škôlok, disponuje vynikajúcou občianskou vybavenosťou a rýchlou dostupnosťou na hlavné ťahy.



Cena: 360 000 €



Realitný maklér: Rebeka Jasenecová



Realitná kancelária DELTA PROPERTY je členom Realitnej únie SR a riadi sa jej Realitným kódexom. Uvedená cena je konečná, zahŕňa províziu realitnej kancelárie, právny servis zabezpečovaný advokátskou kanceláriou, úhradu základného správneho poplatku na katastri, poradenstvo k prevodu nehnuteľnosti a bezplatnú ponuku financovania prostredníctvom hypotéky.