We use cookies

By using this website, you agree to the use of cookies, which help us provide better services. More info

BOSEN | 5 izbový rekreačný dom v novom projekte pri Krpáčove, investičná príležitosť, Dolná Lehota

Basic information

Street: Dolná Lehota
City/Town: Dolná Lehota
District: Brezno
County: Banskobystrický kraj
Type: Houses
Type: Sale
House type: Cottage

BOSEN | 5 izbový rekreačný dom v novom projekte pri Krpáčove, investičná príležitosť, Dolná Lehota

Property description

Bosen Group ponúka na predaj moderný 5 izbový rekreačný dom v úplne novom projekte blízko Nízkych Tatier, Krpáčovo obec Dolná Lehota.

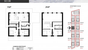
Chata: 1 NP: (95,3 m2) chodba, obývacia izba s kuchyňou, technická miestnosť, spálňa, izba, kúpeľňa, terasa

           2 NP: (54,5 m2) chodba, spálňa, izba, kúpeľňa, šatník

ZARIADENIE: rekreačný dom sa predáva vo vyhotovení holodom, fotografie sú ilustračné.

POZEMOK: 690 m2

PARKING: dve parkovacie státia pred domom

CENA: 199.900 eur plus DPH

LOKALITA: Chotár obce Dolná lehota je v ochrannom pásme Národného parku Nízke Tatry a nachádza sa v ňom časť známeho strediska Krpáčovo. Dostupnosť známych lyžiarskych stredísk okrem Ski areál Krpáčovo - Ski centrum Mýto pod Ďumbierom 11 km, Ski Tále 13 km, Chopok 16 km, Ski centrum Čertovica 25 km. Ďalšie rekreačné atrakcie v okolí oblasti Krpáčovo - prameň Sama Chalupku, vodná nádrž Krpáčovo, rekreačné stredisko Tále (prírodné kúpalisko, tenis, golfové ihrisko, minigolf, lanová dráha, Wellness), Ľupčiansky hrad, Čierny Balog a mnoho ďalšieho.

Realitná kancelária BOSEN je členom Realitnej únie SR a riadi sa jej Realitným poriadkom. Uvedená cena je konečná, zahŕňa províziu realitnej kancelárie, právne služby poskytované advokátskou kanceláriou, úhradu základného správneho poplatku na katastri, poradenstvo pri prevode nehnuteľnosti a bezplatnú ponuku financovania prostredníctvom hypotéky.

 

MORE INFO

Status:
active
Ownership:
corporate
Type:
new Building
Total area:
170 m2
Usable area:
170 m2
Land area:
690 m2
Number of floors:
2
Number of rooms:
5
Bathroom:
bath and shower
Number of bathrooms:
2
Energy performance certification:
A
Parking:
private
Fireplace:
yes
System connection:
yes
Built from:
brick
Insulated object:
yes
Terrace:
yes
Terrace area:
20 m2
Heating:
own - electric
 

INFORMATIVE CREDIT CALCULATOR

 

BROKER

Mgr. Martin Zvolenský

estate agent