We use cookies

By using this website, you agree to the use of cookies, which help us provide better services. More info

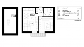
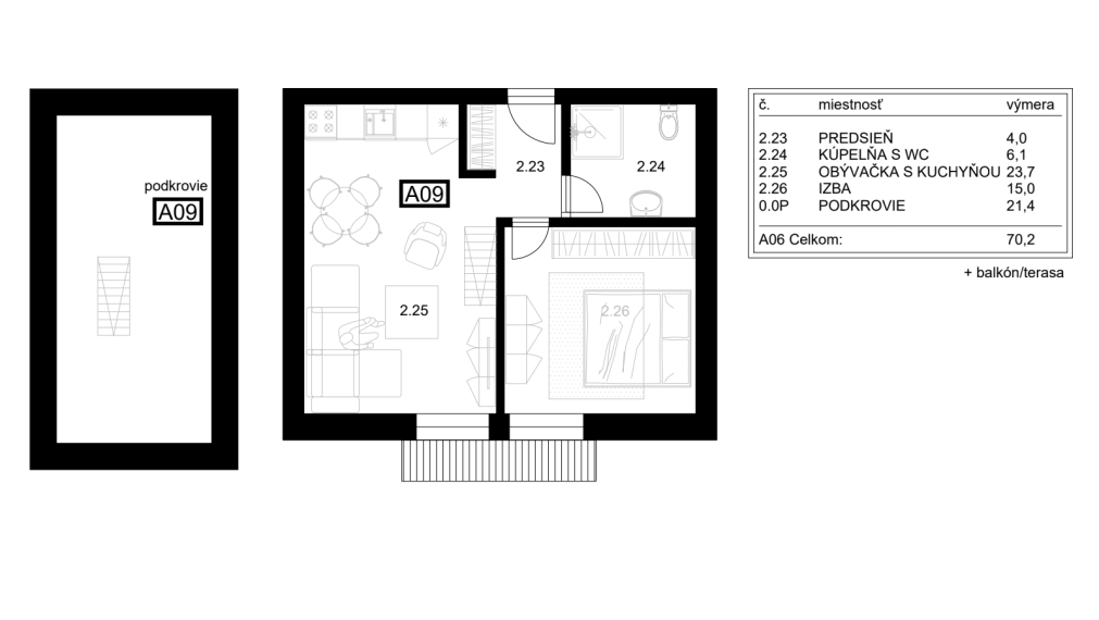
BOSEN | A09 | Mezonetový 3 izbový apartmán, Liptovský Mikuláš - Ondrašová, 70.20 m2

  • PREDANÝ

Basic information

Internal ID: A09
Street: Ondrašovská
City district: Liptovská Ondrašová
City/Town: Liptovský Mikuláš
District: Liptovský Mikuláš
County: Žilinský kraj
Category: Apartments
Type: Sale
Apartment type: Holiday apartment

BOSEN | A09 | Mezonetový 3 izbový apartmán, Liptovský Mikuláš - Ondrašová, 70.20 m2

Property description

Bosen Group Vám ponúka na predaj úplne nový 3 izbový apartmán v srdci krásneho mesta Liptovský Mikuláš, v časti Ondrašová. Tento apartmán sa nachádza v blízkosti Aquaparku Tatralandia, lyžiarskeho centra Jasná - Nízke Tatry a Aquaparku Bešeňová. Ponúka ideálne bývanie pre tých, ktorí ocenia blízkosť športového a rekreačného vyžitia, ktoré Liptov ponúka. Atraktívna poloha s dostatkom vnútroareálového parkovania a krásnym prostredím zabezpečuje príjemný pobyt aj pre náročnejších klientov.

APARTMÁN: Celková plocha apartmánu je 70.20 m2 z čoho je výmera podkrovia je 25.30 m2. Nachádza sa na 1.poschodí a v podkroví apartmánového domu. 

VYBAVENIE: Apartmán je dostupný v štádiu HOLOPRIESTOR, čo umožňuje budúcemu majiteľovi prispôsobiť si ho podľa vlastných predstáv.
Každý apartmán je vybavený teplovodným podlahovým vykurovaním, prípravou pre rebríkový radiátor v kúpeľni, prípravou pre klimatizáciu ako aj  prípravou pre fotovoltický systém.
Regulácia vykurovanie je zabezpečená termostatom s možnosťou ovládania cez WIFI. Vykurovanie a ohrev teplej vody je zabezpečené modernými a kvalitnými tepelnými čerpadlami s nízkou hlučnosťou, ktoré zabezpečujú energetickú efektívnosť systému. Ako záloha je použitý elektrokotol. Na streche budovy sú inštalované solárne panely, ktoré zabezpečujú podporu pre ohrev teplej vody a vo veľkej miere znižujú prevádzkové náklady. Predpríprava pre toalety je realizovaná systémom Viega / Geberit, čo zaručuje vysokú kvalitu a funkčnosť. Okná sú z izolačného trojskla, čo prispieva k vynikajúcej tepelnej a zvukovej izolácii. Pre tých, ktorí preferujú dokončenie bytu, je k dispozícii možnosť realizácie do štandardu - cena dohodou. Každý byt má video vrátnik a prípravu na vonkajšie žalúzie.

PARKOVANIE: K bytu je potrebné dokúpiť minimálne 1 parkovacie státie pred apartmánovým domom v hodnote 5.000 eur 

PROJEKT: Projekt zahŕňa celkovo 9 apartmánových jednotiek s rôznymi pôdorysmi rozloženými na dvoch nadzemných podlažiach. Na výber sú 2-izbové apartmány, ako aj priestranné 4-izbové varianty, ktoré uspokoja rôzne potreby a preferencie budúcich majiteľov. Ku každému apartmánu patrí aj pivničná kobka, ktorá poskytuje dodatočný úložný priestor. 

STAV PROJEKTU: Dokončenie projektu je naplánované na 08/2026, s termínom predpokladanej kolaudácie 2026/2027. 

LOKALITA: Projekt "Apartmány Ondrašová" sa nachádza v obci Liptovská Ondrašová v srdci Liptova, obklopená krásnou prírodou a ponúkajúca množstvo možností na relax a aktívny oddych. Táto lokalita je ideálna pre milovníkov hôr, turistiky a kultúrnych pamiatok. V okolí sa nachádza: Obľúbené rekreačné miesto s možnosťou vodných športov a rybolovu - Liptovská Mara (2 km). Najväčší aquapark na Slovensku, ideálny pre rodiny s deťmi -Tatralandia (1 km). Fascinujúca jaskyňa s bohatou krápníkovou výzdobou Demänovská jaskyňa slobody (20 km). Oblúbené lyžiarske stredisko a turistická destinácia s nádhernými výhľadmi Chopok - Jasná Nízke Tatry (25 km). Liptovská Ondrašová je skvelým východiskovým bodom na objavovanie krás Liptova a ponúka návštevníkom množstvo aktivít a zážitkov.

CENA BYTU: PREDANÝ

V inzercií sú použité ilustračné vizualizácie, ktoré majú len informatívny charakter. 

Pre podrobnejšie informácie ma neváhajte kontaktovať.
Realitný maklér: Mgr.art. Nora Žalúdeková
+421 902 327 970
zaludekova@bosen.sk

Realitná kancelária BOSEN GROUP je členom Realitnej únie SR a riadi sa jej Realitným kódexom. Uvedená cena je konečná, zahŕňa províziu realitnej kancelárie, právny servis zabezpečovaný advokátskou kanceláriou, úhradu základného správneho poplatku na katastri, poradenstvo k prevodu nehnuteľnosti a bezplatnú ponuku financovania prostredníctvom hypotéky.

 

MORE INFO

Ownership:
company
Usable area:
70.2 m2
Built-up area:
70.2 m2
Built-up area:
70.2 m2
Type:
new Building
Number of rooms:
4
Building type:
brick
Equipment type:
holospace
Cellar:
yes
Year of construction:
2024
Year of building approval:
2024
Number of overhead floors:
1
Position:
higher floor
Floor:
1
Total area:
70.2 m2
Cellar count:
1
Central:
yes
Underfloor heating:
yes
 

INFORMATIVE CREDIT CALCULATOR

 

BROKER

Mgr.art. Nora Žalúdeková, RSc.

estate agent