We use cookies

By using this website, you agree to the use of cookies, which help us provide better services. More info

TEPLICZ_9-03_2 izbový byt

  • SOLD

Basic information

Internal ID: 09-03
Street: Teplická
City district: Centrum
City/Town: Piešťany
District: Piešťany
County: Trnavský kraj
Category: Apartments
Type: Sale
Apartment type: One bedroom apartment

TEPLICZ_9-03_2 izbový byt

Property description

Bosen Group Vám ponúka na predaj 2 izbový byt v novom projekte TEPLICZ v samom srdci kúpeľného mesta Piešťany na ulici Teplická. Projekt ponúka ideálne bývanie pre tých, ktorí ocenia komfort spojený s modernou architektúrou a kvalitným prevedením vyhotovenia. Atraktívna poloha priamo v centre mesta, dostatok vnútro-areálového parkovania v spojení s krásnym prostredím legendárnych termálnych kúpeľov uspokojí aj toho najnáročnejšieho klienta.

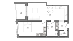
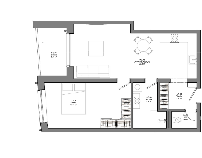
BYT: Celková plocha bytu je 61.27 m2 z čoho má lodžia 5.83 m2. Nachádza sa na 3./4. poschodí s výťahom. 

VYBAVENIE: ŠTANDARD bytu predstavuje samostatné tepelné čerpadlo (vzduch-vzduch) ovládateľný cez wifi aplikáciu, podlahové kúrenie ovládateľné cez wifi aplikáciu, decentralizovanú rekuperáciu, plastové okná s izolačným trojsklom, vonkajšie hliníkové žalúzie ovládateľné cez wifi aplikáciu, drevené dubové parkety, bezfalcové dvere, veľkoformátové obklady, kvalitnú sanitárnu keramiku, umývadlové a sprchové batérie Hansgrohe a pivničnú kobku. 

PARKOVANIE: K bytu je potrebné dokúpiť minimálne 1 vnútroareálové parkovacie státie v hodnote 5.000 - 10.000 eur 

PROJEKT: Projekt ponúka celkovo 10 bytových jednotiek s rozličnými pôdorysmi na 4 nadzemných podlažiach. Na výber je od kompaktných 1-izbových bytov až po priestranné 3 izbové byty z ktorých je každý unikátne navrhnutý pre potreby rozličných životných štýlov ich nových majiteľov. Ku každému bytu prislúcha 1 - 2 parkovacie státia vo vnútrobloku, , budova disponuje zelenou strechou a je vyhotovená v modernom štýle.  

STAV PROJEKTU: Vo výstavbe. Predpokladané ukončenie 2Q 2025. 

LOKALITA: Projekt TEPLICZ  predstavuje pre obyvateľov moderné bývanie, ktoré ponúka viac než len strechu nad hlavou. Je to životný štýl obklopený prírodou a kultúrou, kde história stretáva modernosť, kde každý deň môže byť ako dovolenka. Kvalitné a praktické byty, funkčná architektúra a verejné aj súkromné priestory ponúkajúce relax a pohodlné bývanie. V bezprostrednej dostupnosti sa nachádza kompletná občianska vybavenosť: Obchodné centrum 150m/2 min, Škola 400m/5 min, Nemocnica 500m/7 min, Pešia zóna 180m/5 min, Centrum mesta 150m/5 min, Kino 550m/7 min, Park 500m/7 min, Trhovisko 400m/5 min, Kúpeľný ostrov 800m/11 min, Múzeum 500m/7 min, Materská škola. 550m/7 min, Kultúrne centrum 850m/11 min, veľa kaviarní či reštaurácií ako aj celá sieť obchodov a služieb. 

Pre podrobnejšie informácie ma neváhajte kontaktovať.
Realitný maklér: Mgr.art. Nora Žalúdeková

+421 902 327 970
zaludekova@bosen.sk

Použité vizualizácie sú ilustračné. 

Realitná kancelária BOSEN GROUP je členom Realitnej únie SR a riadi sa jej Realitným kódexom. Uvedená cena je konečná, zahŕňa províziu realitnej kancelárie, právny servis zabezpečovaný advokátskou kanceláriou, úhradu základného správneho poplatku na katastri, poradenstvo k prevodu nehnuteľnosti a bezplatnú ponuku financovania prostredníctvom hypotéky.

 

MORE INFO

Ownership:
company
Usable area:
61.27 m2
Built-up area:
61.27 m2
Type:
new Building
Number of rooms:
2
Energy performance certification:
A
Energy performance of the building:
Zero energy
Building type:
mixed
Loggia:
yes
Garage:
yes
Cellar:
yes
Lift:
yes
Year of construction:
2024
Year of building approval:
2025
Number of overhead floors:
4
Position:
higher floor
Floor:
3
Total area:
61.27 m2
Loggia area:
5.83 m2
Number of loggies:
1
Garage count:
1
Orientation:
west
Utilities:
yes
Water:
yes
Electric:
yes
Sewage:
yes
 

INFORMATIVE CREDIT CALCULATOR

 

BROKER

Mgr.art. Nora Žalúdeková, RSc.

estate agent