We use cookies

By using this website, you agree to the use of cookies, which help us provide better services. More info

REZERVOVANÉ! BOSEN|2 izbový byt v centre s možnosťou prerobiť na 3 izbový, Záhorácka ul., Malacky

Reserved

Basic information

Street: Záhorácka
City district: Centrum
City/Town: Malacky
District: Malacky
County: Bratislavský kraj
Category: Apartments
Type: Sale
Apartment type: One bedroom apartment

REZERVOVANÉ! BOSEN|2 izbový byt v centre s možnosťou prerobiť na 3 izbový, Záhorácka ul., Malacky

Property description

Bosen Group Vám ponúka na predaj 2 izbový byt v centre mesta Malacky na Záhoráckej ulici.

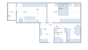
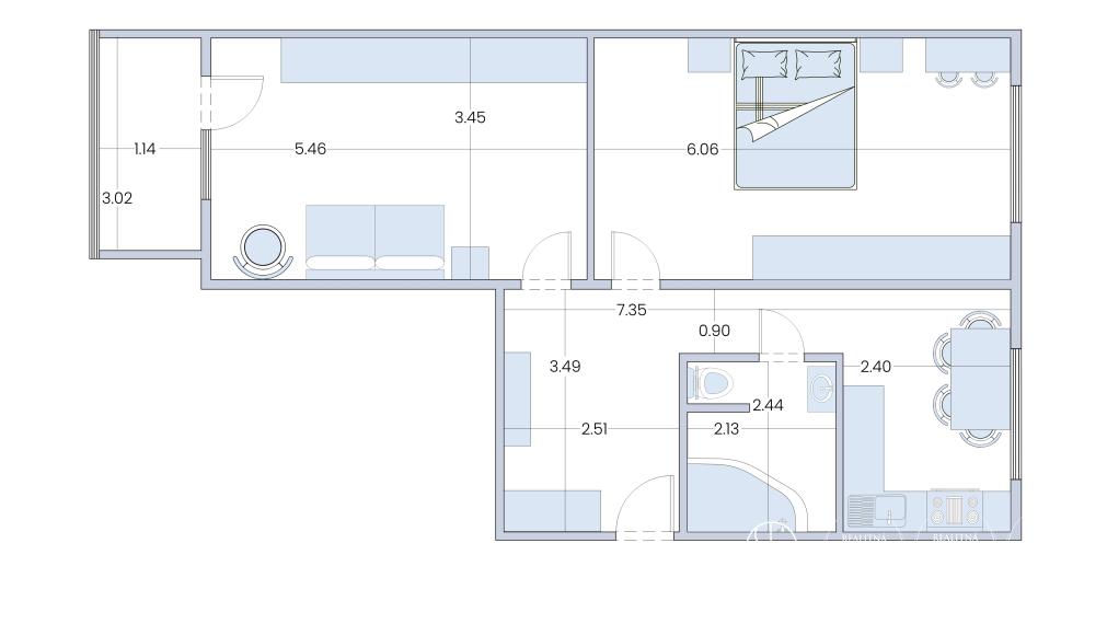
BYT: prešiel dávnejšie rekonštrukciou-vymenené jedno plastové okno, murované jadro, nová elektrina, stupačky, interiérové dvere a zárubne, čiastočne podlahy. Byt má veľkorysú výmeru a to 63m2 + 3,44m2 lodžia. K bytu patrí pivnica na prízemí bytového domu. Byt je možné po rekonštrukcii prerobiť na 3 izbový. Kuchyňa je orientovaná na sever, spálňa a obývačka na juh.

Pozrite si VIDEOOBHLIADKU: https://my.matterport.com/show/?m=xRFuPBtPGnf

BYTOVÝ DOM: prešiel rekonštrukciou-zateplenie bytového domu, balkóny, nový výťah, vstupné dvere aj vestibul.

LOKALITA: centrum mesta, peši sú v dosahu všetky dôležité inštitúcie, obchody aj autobusová zastávka. Vlaková stanica je vzdialená cca 10min pešou chôdzou.

PARKOVANIE: parkovisko priamo pred bytovým domom, verejné parkovanie.

CENA: 150.000,-EUR

Byt je kúpou voľný.

V inzeráte sú použité aj vizualizácie.

Realitná kancelária Bosen Group je členom NARKS a Realitnej únie SR a riadi sa jej Realitným kódexom. Uvedená cena je konečná, zahŕňa províziu realitnej kancelárie, právny servis zabezpečovaný advokátskou kanceláriou, úhradu základného správneho poplatku na katastri, poradenstvo k prevodu nehnuteľnosti a bezplatnú ponuku financovania prostredníctvom hypotéky.

 

MORE INFO

Status:
reserved
Ownership:
personal
Usable area:
63 m2
Built-up area:
63 m2
Type:
partly re-made
Number of rooms:
2
Building type:
panel building
Equipment type:
Partially furnished
Loggia:
yes
Public outdoor parking:
yes
Lift:
yes
Number of overhead floors:
8
Floor:
6
Total area:
63 m2
Loggia area:
3.44 m2
Number of loggies:
1
Central:
yes
 

INFORMATIVE CREDIT CALCULATOR

 

BROKER

Ing. Sabína Režná, RSc.

estate agent