We use cookies

By using this website, you agree to the use of cookies, which help us provide better services. More info

BOSEN | Novostavba rodinného domu v projekte Pod ihriskom, Rohožník

Basic information

Internal ID: 1
City/Town: Rohožník
District: Malacky
County: Bratislavský kraj
Category: Houses
Type: Sale
House type: Family house

BOSEN | Novostavba rodinného domu v projekte Pod ihriskom, Rohožník

Property description

Bosen Group Vám ponúka na predaj novostavby rôznych dispozícií rodinných domov v projekte Pod ihriskom, v obci Rohožník na Záhorí, v tesnej blízkosti Malých Karpát.

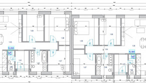
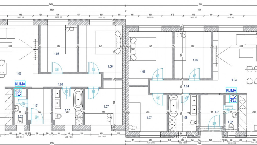
RODINNÝ DOM: v ponuke je 6 prízemných 4 izbových rodinných domov. Domy budú postavené do štádia "štandard"- vymaľované steny, osadené vypínače, zásuvky, interiérové dvere a zárubne, obklady a sanita v kúpeľniach vrátane dokončeného exteriéru - oplotenie, brána a vybudované parkovacie miesta pred domom. Farebné prevedenie štandardu je voliteľné. V cene je predpríprava na vonkajšie elektrické žalúzie, klimatizácia, alarm a fotovoltiku. Vykurovanie bude zabezpečené tepelným čerpadlom. Domy budú napojené na elektrinu, vodu, kanalizáciu a optickú sieť. Projekt je v štádiu prípravy výstavby, výstavba bude zahájená ihneď po vydaní právoplatného stavebného povolenia, predpokladaný termín zahájenia výstavby rodinných domov je začiatok roka 2026 a predpokladaný termín dokončenia je v roku 2027.

POZEMKY: výmery pozemkov od 300m2.

LOKALITA: obec Rohožník sa nachádza na Záhorí, 12km od okresného mesta Malacky a 42km od Bratislavy. Obec disponuje dobrou občianskou vybavenosťou - škola, škôlka, pošta, zdravotné stredisko, obchody, pošta, lekáreň, detské ihriská, športoviská a autobusovým napojením na Malacky, Bratislavu alebo Senicu. Obec je dobrým východiskovým bodom pre turistiku - Malé Karpaty, v blízkosti je Plavecký Hrad a je to miesto vhodné k rybárčeniu a hubárčeniu.

PARKOVANIE: vlastné vyhradené pred domom, vedľa domu bude prístrešok, pod ktorým možno parkovať 1 vozidlo.

CENA: 239.000,-EUR.

V inzeráte sú použité aj interiérové a exteriérové vizualizácie.

Pre podrobnejšie informácie k projektu nás neváhajte kontaktovať.

Bosen Group je členom Realitnej únie SR a riadi sa jej Realitným kódexom. Uvedená cena je konečná, zahŕňa províziu realitnej kanceliárie, právny servis zabezpečovaný advokátskou kanceláriou, poradenstvo k prevodu nehnuteľnosti a bezplatnú ponuku financovania prostredníctvom hypotéky.

 

 

MORE INFO

Status:
active
Ownership:
personal
Front garden area:
300 m2
Land area:
302 m2
Ground type:
flatland
Usable area:
80.43 m2
Built-up area:
80.43 m2
Built-up area:
80.43 m2
Type:
new Building
Number of rooms:
4
Energy performance certification:
A
Building type:
brick
Equipment type:
Unfurnished
Terrace:
yes
Year of construction:
2026
Year of building approval:
2027
Total area:
80.43 m2
Utilities:
yes
Water:
yes
Electric:
yes
Sewage:
yes
Water - On land:
yes
Electric - On land:
yes
On land - sewer:
yes
Underfloor heating:
yes
Local:
yes
Phone:
yes
 

INFORMATIVE CREDIT CALCULATOR

 

BROKER

Ing. Sabína Režná, RSc.

estate agent