We use cookies

By using this website, you agree to the use of cookies, which help us provide better services. More info

5-izbový radový rodinný dom, Vendelínska ulica – Dúbravka

BROKER

Basic information

County: Bratislavský kraj
Category: Houses
Type: Sale
House type: Family house

LOYALTERS | 5-izbový radový rodinný dom, Vendelínska ulica – Dúbravka


LOYALTERS by BOSEN GROUP vám ponúka na predaj nadštandardný moderný 5-izbový radový rodinný dom v obľúbenej lokalite na Vendelínskej ulici v Dúbravke. Dom prešiel kompletnou a kvalitnou rekonštrukciou, má výborné dispozičné riešenie a poskytuje komfortné bývanie pre celú rodinu. Obytná plocha domu predstavuje 243 m², pozemok má výmeru 312 m². K domu prináleží aj veľká samostatná garáž a dve priestranné terasy.

VIRTUÁLNA PREHLIADKA:
https://my.matterport.com/show/?m=t7bXHjdLhhL

DOM:

trojpodlažný murovaný rodinný dom po kompletnej rekonštrukcii

obytná plocha 243 m²

pozemok 312 m²

dve priestranné terasy

veľká samostatná garáž

klimatizácia, kamerový systém, alarm

exteriérové žalúzie na juhozápadnej strane

plynové kúrenie – kotol

elektrická garážová brána

dom sa predáva kompletne zariadený vrátane nábytku a spotrebičov

DISPOZÍCIA:

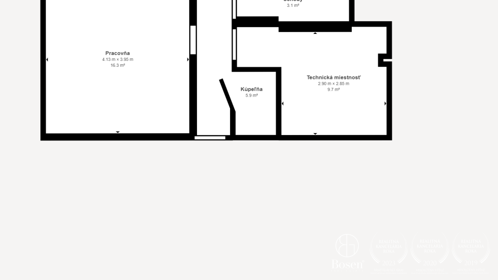
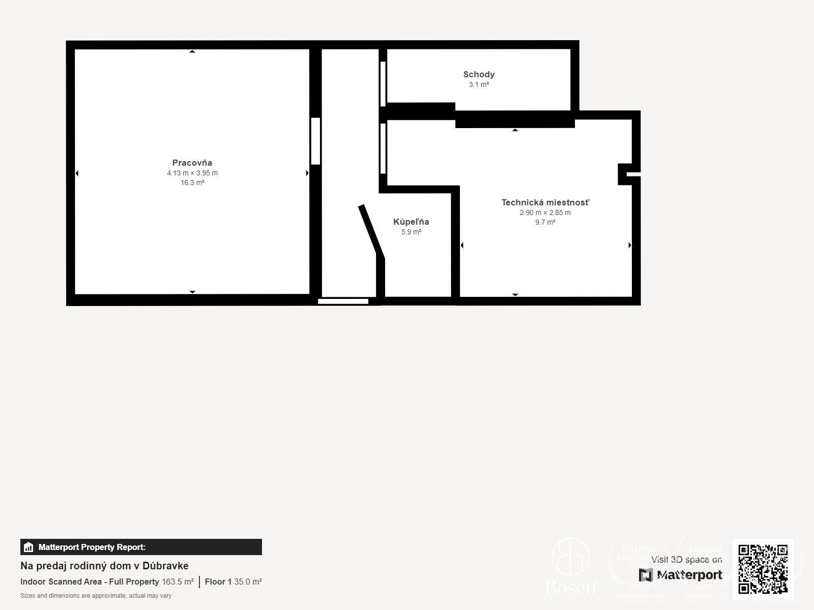
Prízemie:

izba/pracovňa s krbom a priamym vstupom na terasu a záhradu

kúpeľňa s toaletou

veľká garáž

technická miestnosť (kotol, práčka, sušička)

samostatná komora

vstup do pivnice (s oknom), využívanej ako posilňovňa

1. poschodie:

vstupná chodba so šatníkom

priestranná obývacia izba prepojená s jedálňou a kuchyňou s výstupom na terasu

kúpeľňa s toaletou

2. poschodie:

tri svetlé a priestranné izby

veľký šatník v hlavnej spálni

kúpeľňa s toaletou

VÝHODY DOMU:

kompletná a kvalitná rekonštrukcia

premyslené dispozičné riešenie

dve veľké terasy

tri kúpeľne s toaletami (na každom poschodí)

lukratívna a vyhľadávaná lokalita

výborná občianska vybavenosť v pešej dostupnosti (školy, obchody, MHD)

dom sa predáva kompletne zariadený

znalecký posudok k dispozícii

LOKALITA:
Dúbravka patrí medzi najobľúbenejšie bratislavské mestské časti. Poskytuje kompletnú občiansku vybavenosť – školy, škôlky, obchody, zdravotné stredisko, športoviská a kultúrne zariadenia. Výborné dopravné napojenie do centra mesta aj na diaľnicu robí z tejto lokality ideálne miesto pre rodinné bývanie. V blízkosti sa nachádza množstvo zelene, parky, cyklotrasy a prírodné možnosti na relax.

CENA: 589 000 EUR (vrátane kompletného zariadenia a nábytku)

KONTAKT:

REALITNÝ MAKLÉR: Mgr. Ondrej Vrba  tel.: +421 905 721459, email: ondrej.vrba@loyalters.sk

Realitná kancelária Loyalters je členom Bosen Group a zároveň je členom Realitnej únie SR a riadi sa jej Realitným kódexom. Uvedená cena je konečná, zahŕňa províziu realitnej kancelárie, právny servis zabezpečovaný advokátskou kanceláriou, úhradu základného správneho poplatku na katastri, poradenstvo k prevodu nehnuteľnosti a bezplatnú ponuku financovania prostredníctvom hypotéky.