We use cookies

By using this website, you agree to the use of cookies, which help us provide better services. More info

BOSEN | Samostatný rodinný dom Malacky - Píniová Alej

Basic information

Street: Píniová Alej
City/Town: Malacky
District: Malacky
County: Bratislavský kraj
Category: Houses
Type: Sale
House type: Family house

BOSEN | Samostatný rodinný dom Malacky - Píniová Alej

Property description

Bosen Group Vám ponúka na predaj novostavbu samostatne stojaceho 3 izbového rodinného domu s pekným pozemkom v novovybudovanej štvrti v blízkosti okresného mesta Malacky, časť Píniová Alej. 

RODINNÝ DOM: 3 izbový bungalov, zastavaná plocha domu je 85,47 m2 a podlahová plocha domu je 66,06 m2. Rodinný dom je postavený z kvalitných stavebných materiálov. Obvodové murivo a vnútorné priečky YTONG Lambda YQ 500 PDK hrúbka 50cm, strešná krytina - betónová škridla BRAMAC, zateplenie strechy minerálna vlna 30 cm, teplovodné podlahové kúrenie, plastové okná s izolačným 3 sklom a vstupné dvere DATOM, v podkroví je veľký úložný priestor, pochôdzna povala, možnosť vybudovania priestoru – izby. Oplotenie z troch strán, predpríprava na klimatizáciu, krbová vložka, alarm, kamerový systém, vonkajšie elektrické žalúzie. Rodinný dom je napojený na tieto inžinierske siete: elektrika, voda, plyn, optická prípojka internetu, kanalizácia do septiku (10 m3).

Vyhotovenie holodom, možnosť dokončenia do štandardu + cca 12.000€. V rámci holodomu sú osadené vypínače a zásuvky Legrand + LAN káble do miestností pre stabilný káblový internet.

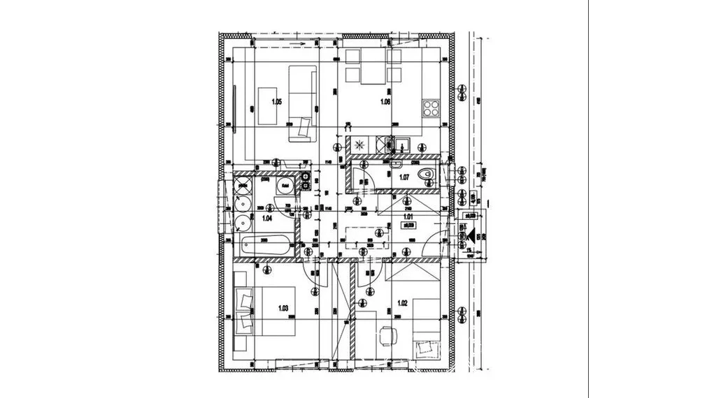
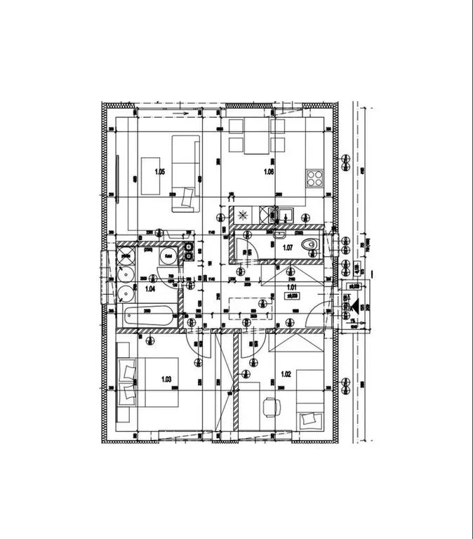
DISPOZÍCIA RODINNÉHO DOMU:  zádverie, samostatné wc, technická miestnosť, vstup do izby č. 1, izby č. 2, kúpeľne s WC. Z chodby domu je prechod do obývačky spojenej s kuchyňou. Z obývačky je výstup na terasu.

ZARIADENIE: rodinný dom sa predáva nezariadený vo vyhotovení holodom. 

POZEMOK: celková výmera pozemku je 381 m2. Pozemok je rovinatý a sú na ňom vysadené stromy a zasiaty trávnik. Fasáda domu má elektrické zásuvky a kabeláž pre budúce osvetlenie domu. Taktiež je vyvedená voda z domu. Na pozemku je okrem 220V aj 380V zásuvka.

PARKOVANIE: vonkajšie parkovacie státia pre 3 autá na pozemku.

LOKALITA: Rodinný dom sa nachádza v novovybudovanej tichej lokalite Píniová Alej, ktorá sa nachádza len 4 km od centra okresného mesta Malacky a 30 km od centra hlavného mesta Bratislava. Mesto Malacky disponuje kompletnou občianskou vybavenosťou (nemocnica, zdravotné strediská, základné školy, materské školy, gymnázium, potravinové reťazce, reštaurácie, lekárne, banky, pošta, mestský a okresný úrad). Píniová Alej poskytuje výhody pokojného bývania v blízkosti lesa a golfového ihriska s veľmi dobrou a rýchlou dostupnosťou do Bratislavy. Priame napojenie (do 5 minút) na D2.

CENA: 189.000,- EUR

Realitný maklér: Michal Leško, +421 944 040 684, lesko@bosen.sk 

Realitná kancelária Bosen Group je členom NARKS a Realitnej únie SR a riadi sa jej Realitným kódexom. Uvedená cena je konečná, zahŕňa províziu realitnej kancelárie, právny servis zabezpečovaný advokátskou kanceláriou, úhradu základného správneho poplatku na katastri, poradenstvo k prevodu nehnuteľnosti a bezplatnú ponuku financovania prostredníctvom hypotéky.

 

MORE INFO

Status:
active
Ownership:
personal
Land area:
381 m2
Ground type:
flatland
Territory:
Intravilan
Usable area:
66.06 m2
Built-up area:
85.47 m2
Built-up area:
66.06 m2
Type:
new Building
Number of rooms:
3
Energy performance certification:
A
Energy performance of the building:
Low energy
Equipment type:
holospace
Terrace:
yes
Year of construction:
2024
Year of building approval:
2025
Total area:
66.06 m2
Terrace area:
14 m2
Terraces count:
1
Number of outdoor parking spaces:
3
Utilities:
yes
Water:
yes
Electric:
yes
Gas:
yes
Water - On land:
yes
On land - 230 V:
yes
On land - 380 V:
yes
Gas - On land:
yes
Underfloor heating:
yes
Phone:
yes
Internet:
yes
Satellite :
yes
Phone:
yes
 

INFORMATIVE CREDIT CALCULATOR

 

BROKER

Michal Leško

estate agent