We use cookies

By using this website, you agree to the use of cookies, which help us provide better services. More info

Basic information

Street: -
City district: Centrun II
City/Town: Dubnica nad Váhom
District: Ilava
County: Trenčiansky kraj
Category: Apartments
Type: Sale
Apartment type: One bedroom apartment

Na predaj 2-izbový byt v žiadanej lokalite Dubnica n/V

Property description

Realitná kancelária Arise, člen siete Bosen Group, vám ponúka na predaj priestranný 2-izbový byt s výmerou 50 m² v žiadanej časti mesta.

BYT: Byt prešiel staršou čiastočnou rekonštrukciou (kuchyňa, kúpeľňa, WC) a je vo veľmi zachovalom stave. Nachádza sa na 3. poschodí zo 6 v stredovej sekcii bytového domu, čo zaručuje príjemnú teplotu počas celého roka.

ZARIADENIE: Predáva sa čiastočne zariadený, prípadne podľa dohody.

DISPOZÍCIA: Dispozične je byt veľmi dobre riešený – pozostáva zo vstupnej chodby, kúpeľne s vaňou, samostatného WC, priestrannej obývacej izby, spálne a kuchyne.

VIRTUÁLNA PREHLIADKA: K dispozícii na vyžiadanie.

VIZUALIZÁCIA: Fotografie zahŕňajú vizualizáciu možnej rekonštrukcie, ktorá novému majiteľovi pomôže ľahšie si predstaviť potenciál tejto nehnuteľnosti.

BYTOVÝ DOM: Bytový dom je kompletne zrekonštruovaný – zateplená fasáda, vymenená strecha, nové výťahy, modernizované spoločné priestory, nové schránky, vstup na čip/kód.

Výhody: 

·         Ideálny na bývanie aj ako investícia na prenájom

·         Nízke mesačné náklady

·         Dobrá orientácia bytu / svetlé miestnosti

·         Výborná dispozícia bez zbytočných strát priestoru

.         Dobrá možnosť parkovania

 

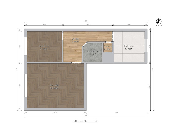
VÝMERY MIESTNOSTÍ

·         Obývacia izba: 21,28 m²

·         Spálňa: 9,16 m²

·         Kuchyňa: 8,04 m²

·         Kúpeľňa: 3,10 m²

·         Chodba: 7,60 m²

·         WC: 0,74 m²

·         Pivničná kobka: 1,35 m²

LOKALITA: Centrum II je vyhľadávaná lokalita s kompletnou občianskou vybavenosťou – potraviny, školy a škôlky, športoviská, zdravotnícke zariadenia, veľa zelene a výborná dostupnosť do celej Dubnice.

CENA: Byt: 105 990 EUR.

MAKLÉR: Mgr. Martin Balážik
                 martin.balazik@arise.sk

Realitná kancelária Arise je členom Bosen Group a Realitnej únie SR a riadi sa jej Realitným kódexom. Uvedená cena je konečná, zahŕňa províziu realitnej kancelárie, právny servis zabezpečovaný advokátskou kanceláriou, úhradu základného správneho poplatku na katastri, poradenstvo k prevodu nehnuteľnosti a bezplatnú ponuku financovania prostredníctvom hypotéky.

 

MORE INFO

Status:
active
Ownership:
personal
Usable area:
50 m2
Built-up area:
50 m2
Store area:
3 m2
Type:
partly re-made
Energy performance certification:
none
Position:
higher floor
 

INFORMATIVE CREDIT CALCULATOR

 

BROKER

Mgr. Martin Balážik

estate agent