We use cookies

By using this website, you agree to the use of cookies, which help us provide better services. More info

Basic information

Internal ID: TM-35
Street: Nová štvrť
City/Town: Dolný Bar
District: Dunajská Streda
County: Trnavský kraj
Category: Houses
Type: Sale
House type: Family house

BOSEN | Moderný 4-izbový dom v holodome, Dolný Bar

Property description

Bosen Group Vám ponúka na predaj rozostavaný 4-izbový rodinný dom v obci Dolný Bar, situovaný v novovybudovanej modernej štvrti.
Nehnuteľnosť bude dokončená v lete 2026 a predáva sa v stave holodom s možnosťou dokončenia do štandardu. Projekt je navrhnutý s dôrazom na modernú architektúru, kvalitné materiály a vysoký technologický štandard bývania.

DISPOZÍCIA A VYBAVENIE
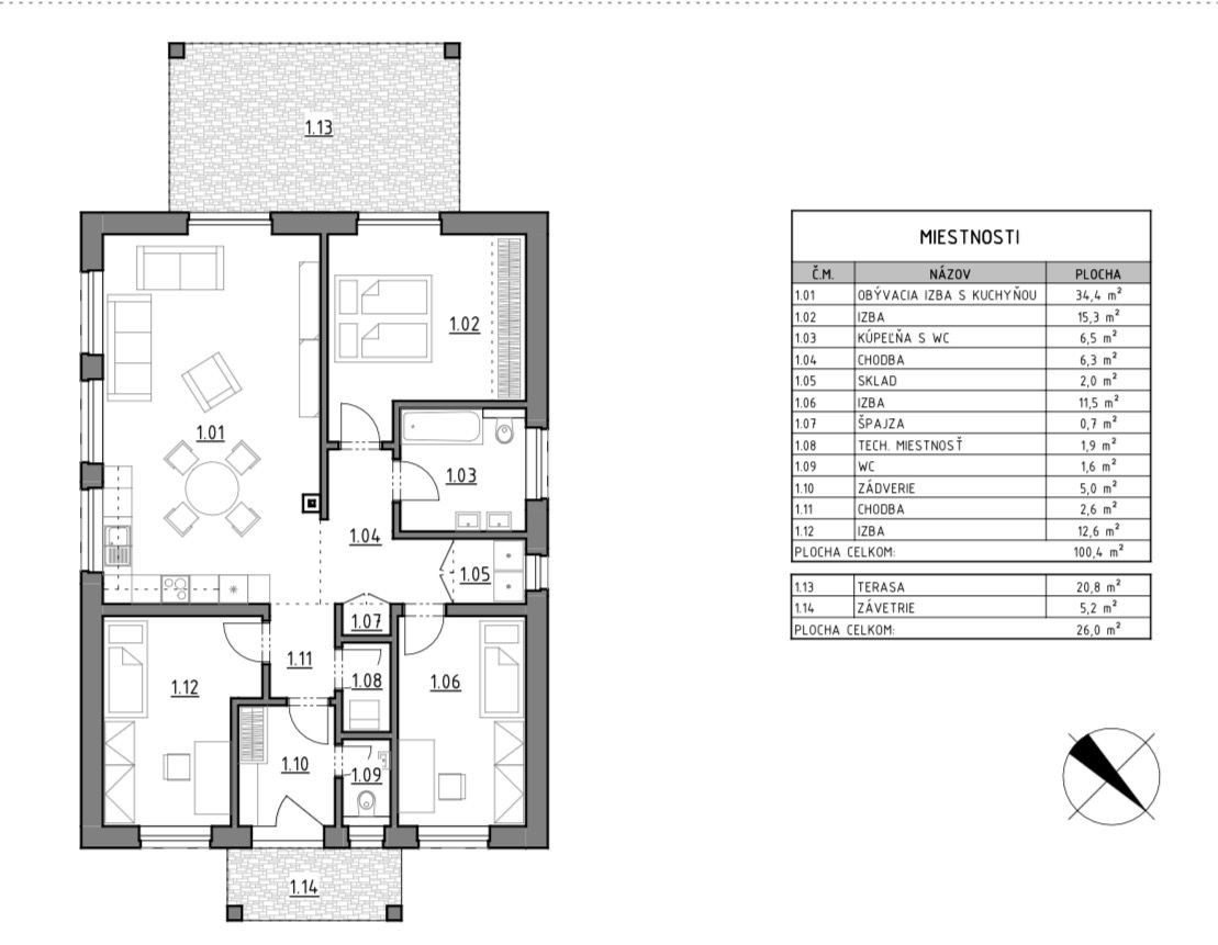
Rodinný dom má premyslenú 4-izbovú dispozíciu s úžitkovou plochou 100,4 m². Dennú časť tvorí priestranná obývacia izba s kuchyňou o výmere 34,4 m², ktorá je vďaka veľkým francúzskym oknám výborne presvetlená a plynulo prepojená s terasou o výmere 20,8 m².
Nočná časť pozostáva z troch samostatných izieb s výmerami 15,3 m², 12,6 m² a 11,5 m². Dom disponuje jednou kúpeľňou s WC (6,5 m²) a zároveň samostatným WC (1,6 m²). Komfort bývania dopĺňajú špajza 0,7 m², technická miestnosť 1,9 m², sklad 2,0 m², zádverie 5,0 m² a chodby 6,3 m² a 2,6 m².

V dome je kompletný rozvod podlahového kúrenia a príprava na tepelné čerpadlo už zahrnutá v cene. Samotné tepelné čerpadlo nie je súčasťou ceny a je možné ho doplniť za príplatok približne 6.000 €, pričom táto suma je stanovená po odrátaní štátnej dotácie.
Súčasťou ceny sú 2 kompletné klimatizačné jednotky, teda 2 vnútorné a 2 vonkajšie jednotky. Nehnuteľnosť je riešená ako technologicky prepracovaný dom, kde architekti mysleli na každý detail s dôrazom na komfort, funkčnosť a bezpečné bývanie.

POZEMOK, ZÁHRADA
Pozemok má výmeru 500 m² a je oplotený, pričom oplotenie je už zahrnuté v cene. Na pozemku sú realizované spevnené plochy určené na parkovanie pre 3 vozidlá. Terasa orientovaná do záhrady vytvára ideálny priestor na oddych a rodinné posedenia.

LOKALITA
Dolný Bar patrí medzi vyhľadávané lokality v blízkosti Dunajskej Stredy. Novovybudovaná štvrť ponúka pokojné a moderné bývanie s dobrou dostupnosťou do mesta aj smerom na Bratislavu. Lokalita je ideálna pre rodiny, ktoré hľadajú kľudné bývanie v kombinácii s kompletnou občianskou vybavenosťou v dosahu.

VÝHODY
• dokončenie domu v lete 2026
• moderná architektúra v novej štvrti
• kvalitné materiály použité pri výstavbe
• veľké francúzske okná a výborné presvetlenie
• kompletná príprava na tepelné čerpadlo a podlahové kúrenie v cene
• parkovanie pre 3 vozidlá na pozemku
• technologicky prepracovaná nehnuteľnosť s dôrazom na detail
• pozemok 500 m², oplotenie v cene
• pokojná lokalita s výbornou dostupnosťou

CENA A PODMIENKY
Cena holodom: 223.000 €
(+ možnosť dokončenia do štandardu: 259.000 €)

MAKLÉR: Zuzana Csiriková
tel.: +421 903 369 815
e-mail: csirikova@bosen.sk

Realitná kancelária BOSEN GROUP je členom Realitnej únie SR a riadi sa jej Realitným kódexom. Uvedená cena je konečná – zahŕňa províziu RK, právny servis advokátskej kancelárie, správne poplatky na katastri, poradenstvo pri prevode nehnuteľnosti a bezplatnú ponuku financovania prostredníctvom hypotéky.

 

MORE INFO

Status:
active
Ownership:
personal
Land area:
500 m2
Ground type:
flatland
Usable area:
101 m2
Built-up area:
154 m2
Type:
new Building
Number of rooms:
4
Year of construction:
2026
Total area:
100 m2
Orientation:
southwest
Utilities:
yes
Water:
yes
Electric:
yes
Sewage:
yes
Electric - On land:
yes
On land - 380 V:
yes
Underfloor heating:
yes
 

INFORMATIVE CREDIT CALCULATOR

 

BROKER

Zuzana Csiriková

real estate agent