
Street: | Lipová |
---|---|
City/Town: | Dojč |
District: | Senica |
County: | Trnavský kraj |
Category: | Houses |
Type: | Sale |
House type: | Family house |
Bosen Group Vám ponúka na predaj nadštandardný 4-izbový rodinný dom s garážou a terasou – Dojč
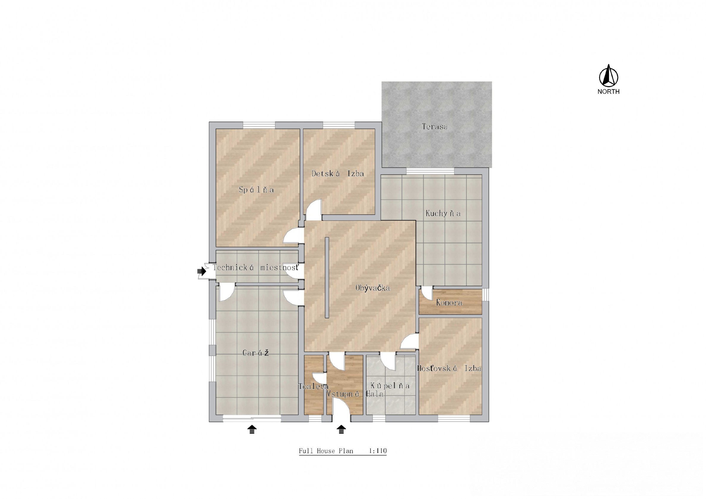
DOM: Celková výmera domu je úžitkovoa plocha 149 m², z čoho garáž má 20 m² a krytá terasa 20 m², na pozemku o výmere 700 m². Dom bol dokončený v roku 2024, skolaudovaný v roku 2025 a disponuje energetickým certifikátom.
DISPOZÍCIA: Dom pozostáva zo vstupnej chodby, samostatného WC pri vstupe, kúpeľne, kuchyne prepojenej s obývacou izbou a jedálňou s výstupom na krytú terasu (HS port), spálne, troch ďalších izieb, technickej miestnosti, komory a garáže priamo v dome so vstupom na povalu.
Dom je postavený z YTONG 30 cm, zateplený 15 cm polystyrénom, má väzníkovú strechu so škridlou Bramac, plastové trojsklové okná a hliníkové vchodové a bočné dvere, garážovú bránu Hörmann, komín Schiedel, krbovú vložku s prieduchmi, rekuperáciu Komfovent, bojler Dražice 160 l, prípravu na elektrické žalúzie, klimatizáciu, alarm a kamerový systém, termostaty v každej izbe, kompletne vonkajšie osvetlenie domu, upravený terén s chodníkom k domu a dlažbou ABW pred garážou, a možnosť dobudovania nabíjacej stanice pre elektromobil.
POZEMOK: Rovinatý pozemok o celkovej výmere 700 m2. Rodinný dom je napojený na verejný vodovod a obecnú kanalizáciu. Terasa je zastrešená.
PARKOVANIE: Možnosť parkovať v garáži. 2 parkovacie miesta pred garážou.
VÝHODÝ:Dom ponúka moderné a komfortné bývanie s nadštandardnou výbavou, priestrannou dispozíciou a veľkým pozemkom 800 m², ideálny pre rodinu hľadajúcu bezpečné a pohodlné bývanie pripravené na budúcnosť.
LOKALITA: Rodinný dom sa nachádza na ulici Lipová v obci Dojč, v tichej a pokojnej časti vhodnej pre rodinné bývanie. Obec ponúka príjemné prostredie s blízkosťou prírody, občianskou vybavenosťou a základnými službami. Dojč má výborné napojenie na diaľnicu D2, čo umožňuje rýchly a pohodlný prístup do Bratislavy za približne 30–35 minút autom.
CENA: 290 000 Eur
Realitný Maklér: Petra Foltanovičová, tel. +421 917 648 039 Foltanovicova@bosen.sk
Realitná kancelária BOSEN GROUP je členom Realitnej únie SR a riadi sa jej Realitným kódexom. Uvedená cena je konečná, zahŕňa províziu realitnej kancelárie, právny servis zabezpečovaný advokátskou kanceláriou, úhradu základného správneho poplatku na katastri, poradenstvo k prevodu nehnuteľnosti a bezplatnú ponuku financovania prostredníctvom hypotéky.