We use cookies

By using this website, you agree to the use of cookies, which help us provide better services. More info

BOSEN | Rezervované-Prenájom kancelárskych priestorov na Panenskej ulici - Staré Mesto, Bratislava

Reserved

Basic information

Street: Panenská
City/Town: Bratislava-Staré Mesto
District: Bratislava I
County: Bratislavský kraj
Category: Objects
Type: Rent
Object type: Office building

BOSEN | Rezervované-Prenájom kancelárskych priestorov na Panenskej ulici - Staré Mesto, Bratislava

Property description

BOSEN Group Vám ponúka na prenájom kancelárske priestory v administratívnej budove v centre hlavného mesta Bratislava.

Budova je umiestnená na lukratívnej adrese Panenskej ulici 8, Bratislava 1 – Staré Mesto, neďaleko Veľvyslanectva Rakúskej republiky a Grasalkovičovho /prezidentského/ paláca v tesnej blízkosti Palisád a Hodžovho námestia.

Administratívna budova so 4.NP prechádza kompletnou rekonštrukciou, priestory k prenájmu budú k dispozícii po polovice roka 2025.

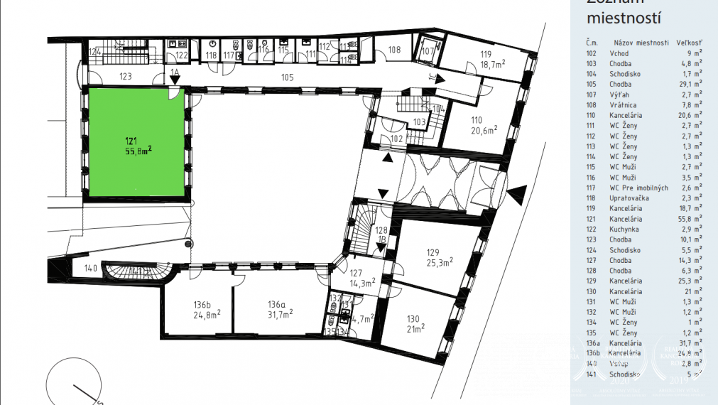
  • Klimatizovaný priestor o výmere 55,80 m2, disponuje samostatnou open space kanceláriou s možnosťou rozdelenia.
    Sociálne zariadenia ako aj kuchynka sú pre tento priestor zdieľané na rovnakom podlaží. 

V tomto priestore je možnosť voľby podlahovej krytiny (koberec / vinyl).

Cena nájmu závisí od dĺžky nájmu a požadovaných úprav na priestoroch, 11,50€ - 12,50€/ m2/ mesiac + DPH.
Prevádzkové náklady a energie 4,90€ - 5,50€/ m2/ mesiac + DPH.
Kaucia 2-mesačné nájomné.
K dispozícií je limitovaný počet vonkajších parkovacích státí, cena 130€/ miesto /mesiac + DPH.

Maklérka Daniela Borbélyová
Tel.: +421 917 164 768
E-mail: borbelyova@bosen.sk

Realitná kancelária BOSEN GROUP je členom Realitnej únie SR a riadi sa jej Realitným kódexom. Uvedená cena je konečná, zahŕňa províziu realitnej kancelárie, právny servis zabezpečovaný advokátskou kanceláriou, úhradu základného správneho poplatku na katastri, poradenstvo k prevodu nehnuteľnosti a bezplatnú ponuku financovania prostredníctvom hypotéky.

 

MORE INFO

Status:
reserved
Usable area:
55.8 m2
Type:
Fully re-made
Lift:
yes
Total area:
1 m2
 

BROKER

Daniela Borbélyová

Realitný maklér