We use cookies

By using this website, you agree to the use of cookies, which help us provide better services. More info

Basic information

Street: Nám 1. Mája
City/Town: Bratislava-Staré Mesto
District: Bratislava I
County: Bratislavský kraj
Category: Apartments
Type: Sale
Apartment type: Two bedroom apartment

LOYALTERS | Predaj 3-izbového apartmánu s balkónom 82m2 | Kesselbauer |

Property description

LOYALTERS | Predaj 3-izbového apartmánu s balkónom | Projekt interiéru v cene | Kesselbauer – Bratislava Staré Mesto

POPIS NEHNUTEĽNOSTI

LOYALTERS Vám exkluzívne ponúka na predaj nadštandardný 3-izbový apartmán v prémiovom projekte Kesselbauer, situovanom v samotnom historickom centre Bratislavy – len pár krokov od Prezidentského paláca a Prezidentskej záhrady, na Námestí 1. mája.

Apartmán predstavuje ideálne spojenie moderného mestského bývania, vysokej kvality vyhotovenia a jedinečnej polohy.


VIDEO link:  https://www.youtube.com/watch?v=OYeViAN5Ma0


APARTMÁN

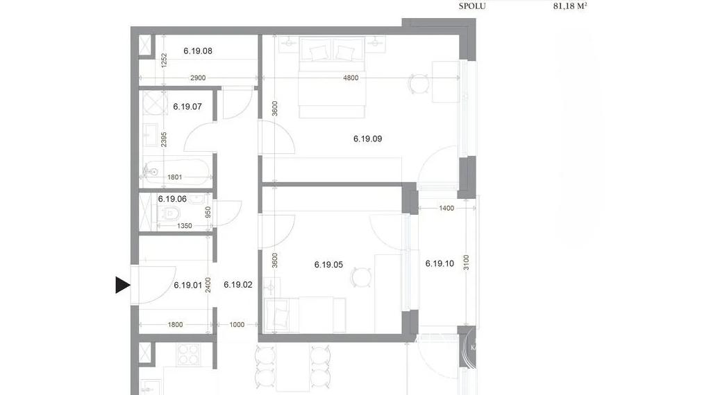
Celková interiérová plocha bytu je 76,84 m². Súčasťou je balkón o výmere 4,34 m², prístupný zo všetkých troch obytných miestností, s príjemným výhľadom na bratislavskú Kolibu.

Nehnuteľnosť je situovaná na 6. poschodí z celkových 8 v nadčasovom polyfunkčnom projekte Kesselbauer.


DISPOZÍCIA

• vstupná predsieň
• obývacia izba prepojená s kuchyňou
• dve samostatné spálne
• kúpeľňa
• samostatná toaleta


TECHNICKÉ VYHOTOVENIE – NADŠTANDARD

bezpečnostné protipožiarne vstupné dvere
• hliníkové okná s izolačným trojsklom
• elektricky ovládané exteriérové žalúzie
• klimatizácia vo všetkých obytných miestnostiach
• vykurovanie doskovými radiátormi + elektrická rohož a rebríkový radiátor v kúpeľni
• smart systém otvárania
• optická sieť, kompletné zásuvky a vývody na osvetlenie
• nadštandardná svetlá výška miestností 3 metre


PARKOVANIE & PIVNICA

K apartmánu je možné dokúpiť:
• parkovacie státie v podzemnej garáži
• pivnicu


BONUS – V CENE BYTU

profesionálny projekt interiéru – dve varianty
• vysoké stropy (3 m)
• klimatizácia v každej izbe
• elektricky ovládané exteriérové žalúzie
• možnosť dokončenia interiéru podľa vizualizácií (so zárukou na realizované práce)
• interiér vo vyššom štandarde


LOKALITA – ABSOLÚTNE CENTRUM MESTA

Projekt Kesselbauer sa nachádza v srdci Bratislavy. V bezprostrednej pešej dostupnosti je historické centrum, obchody, služby, reštaurácie, kaviarne, školy, banky aj lekárne.

Vynikajúca je aj dostupnosť MHD, pričom Hlavná železničná stanica je vzdialená približne 5 minút autom alebo autobusom.


DOSTUPNOSŤ

Byt je k dispozícii ihneď.


CENA: 129 700,- EUR s DPH / možný odpočet DPH

REALITNÝ MAKLÉR: Mgr. Ondrej Vrba, tel.: +421 909 721 459,

email: ondrej.vrba@loyalters.sk

 Realitná kancelária Loyalters je členom Bosen Group a zároveň je členom Realitnej únie SR a riadi sa jej Realitným kódexom. Uvedená cena je konečná, zahŕňa províziu realitnej kancelárie, právny servis zabezpečovaný advokátskou kanceláriou, úhradu základného správneho poplatku na katastri, poradenstvo k prevodu nehnuteľnosti a bezplatnú ponuku financovania prostredníctvom hypotéky.

 

MORE INFO

Status:
active
Ownership:
personal
Usable area:
82 m2
Built-up area:
76.84 m2
Type:
new Building
Number of rooms:
3
Energy performance certification:
B
Energy performance of the building:
Energy economical
Building type:
brick
Loggia:
yes
Lift:
yes
Year of construction:
2021
Year of building approval:
2023
Number of overhead floors:
8
Floor:
6
Total area:
82 m2
Loggia area:
4.34 m2
Number of loggies:
1
 

INFORMATIVE CREDIT CALCULATOR

 

BROKER

Mgr. Ondrej Vrba

estate agent