
Interné ID: | 3 |
---|---|
Obec: | Rohožník |
Okres: | Malacky |
Kraj: | Bratislavský kraj |
Druh: | Domy |
Typ: | Predaj |
Typ domu: | Rodinný dom |
Bosen Group Vám ponúka na predaj novostavby rôznych dispozícií rodinných domov v projekte Pod ihriskom, v obci Rohožník na Záhorí, v tesnej blízkosti Malých Karpát.
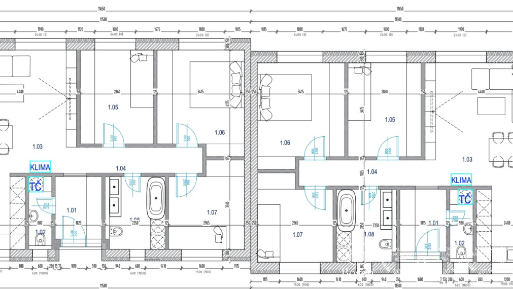
DVOJDOMY: v ponuke je 6 prízemných 4 izbových rodinných domov súčasťou dvojdomu. Domy budú postavené do štádia "štandard"- vymaľované steny, osadené vypínače, zásuvky, interiérové dvere a zárubne, obklady a sanita v kúpeľniach vrátane dokončeného exteriéru - oplotenie, brána a vybudované parkovacie miesta pred domom. Farebné prevedenie štandardu je voliteľné. V cene je predpríprava na vonkajšie elektrické žalúzie, klimatizácia, alarm a fotovoltiku. Vykurovanie bude zabezpečené tepelným čerpadlom. Domy budú napojené na elektrinu, vodu, kanalizáciu a optickú sieť. Projekt je v štádiu prípravy výstavby (realizácia inžinierských sietí) predpokladaný termín zahájenia výstavby rodinných domov je koniec roka 2025 a predpokladaný termín dokončenia je v prvej polovici roka 2027.
POZEMKY: výmery pozemkov od 300m2.
LOKALITA: obec Rohožník sa nachádza na Záhorí, 12km od okresného mesta Malacky a 42km od Bratislavy. Obec disponuje dobrou občianskou vybavenosťou - škola, škôlka, pošta, zdravotné stredisko, obchody, pošta, lekáreň, detské ihriská, športoviská a autobusovým napojením na Malacky, Bratislavu alebo Senicu. Obec je dobrým východiskovým bodom pre turistiku - Malé Karpaty, v blízkosti je Plavecký Hrad a je to miesto vhodné k rybárčeniu a hubárčeniu.
PARKOVANIE: vlastné vyhradené pred domom.
CENA: 239.000,-EUR.
V inzeráte sú použité aj interiérové a exteriérové vizualizácie.
Pre podrobnejšie informácie k projektu nás neváhajte kontaktovať.
Bosen Group je členom Realitnej únie SR a riadi sa jej Realitným kódexom. Uvedená cena je konečná, zahŕňa províziu realitnej kanceliárie, právny servis zabezpečovaný advokátskou kanceláriou, poradenstvo k prevodu nehnuteľnosti a bezplatnú ponuku financovania prostredníctvom hypotéky.