
Ulica: | Vendelínska ulica |
---|---|
Obec: | Bratislava-Dúbravka |
Okres: | Bratislava IV |
Kraj: | Bratislavský kraj |
Druh: | Domy |
Typ: | Predaj |
Typ domu: | Rodinný dom |
LOYALTERS | 5-izbový radový rodinný dom, Vendelínska ulica – Dúbravka
LOYALTERS by BOSEN GROUP vám ponúka na predaj nadštandardný moderný 5-izbový radový rodinný dom v obľúbenej lokalite na Vendelínskej ulici v Dúbravke. Dom prešiel kompletnou a kvalitnou rekonštrukciou, má výborné dispozičné riešenie a poskytuje komfortné bývanie pre celú rodinu. Obytná plocha domu predstavuje 243 m², pozemok má výmeru 312 m². K domu prináleží aj veľká samostatná garáž a dve priestranné terasy.
VIRTUÁLNA PREHLIADKA:
https://my.matterport.com/show/?m=t7bXHjdLhhL
DOM:
trojpodlažný murovaný rodinný dom po kompletnej rekonštrukcii
obytná plocha 243 m²
pozemok 312 m²
dve priestranné terasy
veľká samostatná garáž
klimatizácia, kamerový systém, alarm
exteriérové žalúzie na juhozápadnej strane
plynové kúrenie – kotol
elektrická garážová brána
dom sa predáva kompletne zariadený vrátane nábytku a spotrebičov
DISPOZÍCIA:
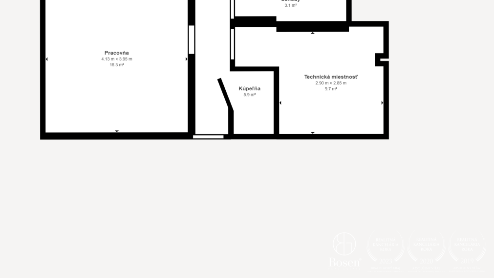
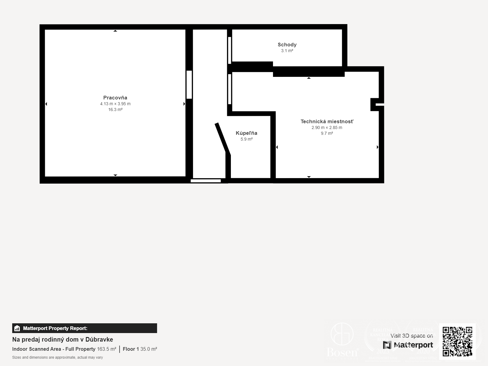
Prízemie:
izba/pracovňa s krbom a priamym vstupom na terasu a záhradu
kúpeľňa s toaletou
veľká garáž
technická miestnosť (kotol, práčka, sušička)
samostatná komora
vstup do pivnice (s oknom), využívanej ako posilňovňa
1. poschodie:
vstupná chodba so šatníkom
priestranná obývacia izba prepojená s jedálňou a kuchyňou s výstupom na terasu
kúpeľňa s toaletou
2. poschodie:
tri svetlé a priestranné izby
veľký šatník v hlavnej spálni
kúpeľňa s toaletou
VÝHODY DOMU:
kompletná a kvalitná rekonštrukcia
premyslené dispozičné riešenie
dve veľké terasy
tri kúpeľne s toaletami (na každom poschodí)
lukratívna a vyhľadávaná lokalita
výborná občianska vybavenosť v pešej dostupnosti (školy, obchody, MHD)
dom sa predáva kompletne zariadený
znalecký posudok k dispozícii
LOKALITA:
Dúbravka patrí medzi najobľúbenejšie bratislavské mestské časti. Poskytuje kompletnú občiansku vybavenosť – školy, škôlky, obchody, zdravotné stredisko, športoviská a kultúrne zariadenia. Výborné dopravné napojenie do centra mesta aj na diaľnicu robí z tejto lokality ideálne miesto pre rodinné bývanie. V blízkosti sa nachádza množstvo zelene, parky, cyklotrasy a prírodné možnosti na relax.
CENA: 629 000 EUR (vrátane kompletného zariadenia a nábytku)
KONTAKT:
REALITNÝ MAKLÉR: Mgr. Ondrej Vrba tel.: +421 905 721459, email: ondrej.vrba@loyalters.sk
Realitná kancelária Loyalters je členom Bosen Group a zároveň je členom Realitnej únie SR a riadi sa jej Realitným kódexom. Uvedená cena je konečná, zahŕňa províziu realitnej kancelárie, právny servis zabezpečovaný advokátskou kanceláriou, úhradu základného správneho poplatku na katastri, poradenstvo k prevodu nehnuteľnosti a bezplatnú ponuku financovania prostredníctvom hypotéky.