Používame cookies

Súbory cookie a ďalšie technológie sledovania používame na zlepšenie vášho zážitku z prehliadania našich webových stránok, na to, aby sme vám zobrazovali prispôsobený obsah a cielené reklamy, na analýzu návštevnosti našich webových stránok a na pochopenie toho, odkiaľ naši návštevníci prichádzajú. Viac info

  • Cena dohodou

Základné informácie

Okres: Námestovo
Kraj: Žilinský kraj
Druh: Objekty
Typ: Predaj
Typ objektu: Apartmánový dom

LOYALTERS | Rodinný dom s dvomi bytovými jednotkami - Habovka Orava

Popis nehnuteľnosti

Loyalters by Bosen Group Vám ponúka exkluzívne na predaj priestranný rodinný dom s dvomi bytovými jednotkami v štádiu hrubej stavby vo vyhľadávanej turistickej lokalite. Je ideálny pre rodiny aj mladé páry, a taktiež ako investícia na prenájom a podnikanie. Takisto je tu možnosť prerobenia domu na penzión a prenájmu bytových jednotiek (možnosť vytvoriť 4 apartámy na prenájom, prípadne iné kombinácie). 

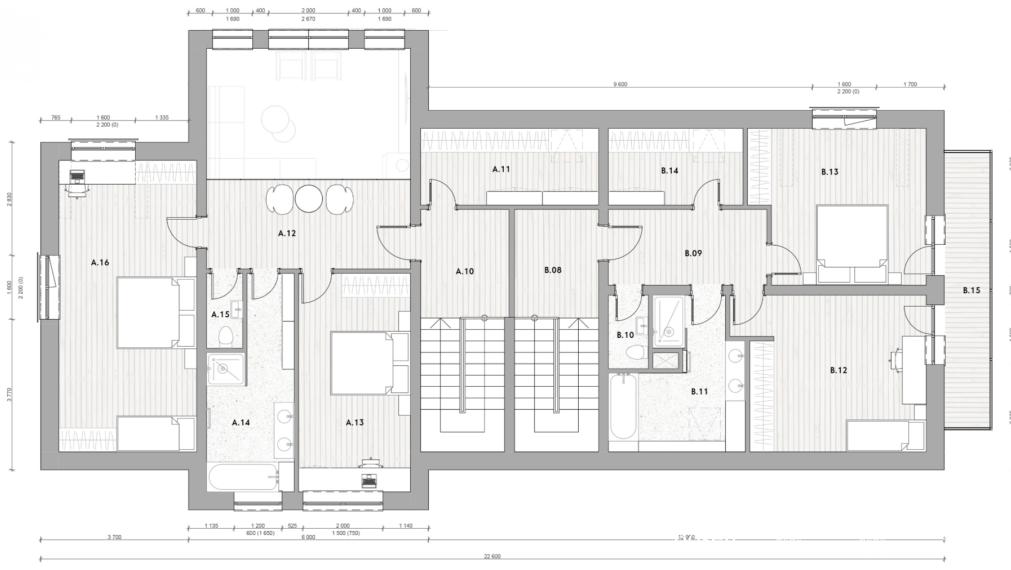
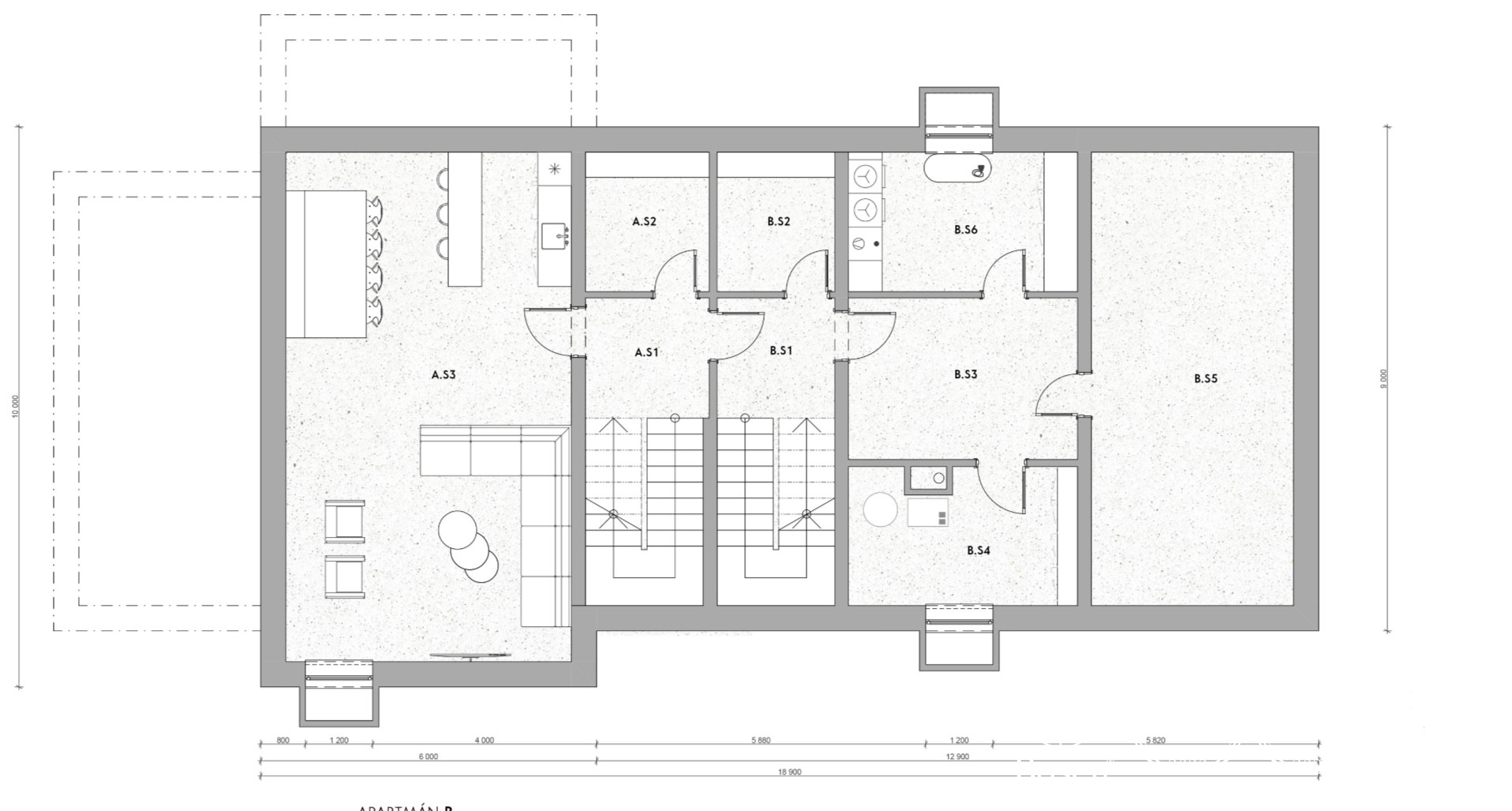
Bytová jednotka A: Celková plocha bytovej jednotky má výmeru 178 m². 1.NP je o výmere 97,84 m² a pozostáva zo spoločenskej miestnosti, kúpeľne, spálne,  šatníka, komory a toalety. 2.NP je o výmere 79 m² a pozostáva z 2 izieb, šatníka, chodby, kúpeľne a toalety.

Bytová jednotka B: Celková plocha bytovej jednotky má výmeru 150 m2. 1.NP je o výmere 82,62 m² a pozostáva zo spoločenskej miestnosti, kúpeľne, spálne, komory a toalety. 2.NP je o výmere 67,69 m² a pozostáva z 2 izieb, šatníka, chodby, kúpeľne a toalety.

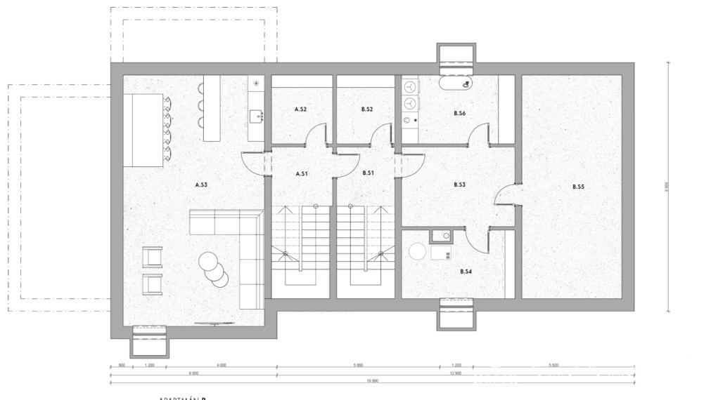
Zapustená časť domu: Dom je na 90 percent podpivničený, disponuje oknami - anglické dvorce,  a vyhotovenie je z monolitického, vode odolného betónu. Skladá sa z dvoch priestorov časť A: 63,80 m² ( spoločenská miestnosť, lyžiareň, schodisko) a časť B: 77,97m² ( schodisko, lyžiareň, chodba, kotolňa, sklad, práčovňa).

TECHNICKÉ VYHOTOVENIE: Rodinný dom je v štádiu rozostavanej stavby ( zapísaný aj na Liste vlastníctva, teda je tu možnosť hypotekárneho úveru ). Rodinný dom v tomto štádiu Vám poskytuje viacero možností a variantov bytových jednotiek. Disponuje kvalitnými plastovými oknami, HS portálmi a dverami značky REHAU.

POZEMOK: Celková plocha pozemku má výmeru 1139 m2, z čoho zastavaná plocha domu je 217 m² a ostatná časť pozemku má výmeru 922 m². 

Inžinierske siete: Na hranici pozemku je voda, elektrika, kanalizácia a plyn. 

PARKOVANIE: Je riešené formou vonkajších parkovacích miest. 

LOKALITA: Lokalita – Habovka, Orava
Rodinný dom sa nachádza v malebnej obci Habovka, ktorá leží priamo pri vstupnej bráne do Západných Tatier – Roháčov. Táto oblasť patrí k najvyhľadávanejším turistickým destináciám na Orave vďaka čarovnej prírode, horským túram a tradičnej oravskej atmosfére.

Len pár minút od domu sa nachádzajú turistické chodníky vedúce do Roháčskej doliny, ktorá ponúka nádherné výhľady, vodopády a horské plesá. Okolie je ideálne na celoročné aktivity – v lete turistika a cykloturistika, v zime lyžovanie v strediskách ako Zuberec – Roháče – Spálená.

Habovka je známa aj folklórnymi tradíciami a festivalmi, ktoré každoročne priťahujú návštevníkov z celého Slovenska. V blízkosti nájdete Oravský hrad, Múzeum oravskej dediny v Zuberci či termálne kúpaliská v Oraviciach, takže možnosti na oddych a zážitky sú skutočne široké.

Vďaka svojej polohe je Habovka ideálnym miestom nielen na pokojné rodinné bývanie, ale aj na rekreačné využitie či investíciu do ubytovania pre turistov.

CENA:  DOHODOU

REALITNÝ MAKLÉR: Mgr. Ondrej Vrba, +421 905 721 459, ondrej.vrba@loyalters.sk

Realitná kancelária Loyalters je členom Bosen Group a zároveň je členom Realitnej únie SR a riadi sa jej Realitným kódexom. Uvedená cena zahŕňa províziu realitnej kancelárie, právny servis zabezpečovaný advokátskou kanceláriou, úhradu základného správneho poplatku na katastri, poradenstvo k prevodu nehnuteľnosti a bezplatnú ponuku financovania prostredníctvom hypotéky. 

 

 

BLIŽŠIE INFO

Status:
aktívne
Vlastníctvo:
osobné
Úžitková plocha:
469 m2
Zastavaná plocha:
217 m2
Stav:
Vo výstavbe
Rok výstavby:
2025
Celková plocha:
469 m2
 

MAKLÉR

Mgr. Ondrej Vrba

realitný maklér

Radi Vám poradíme

 

Podobné nehnuteľnosti