Používame cookies

Súbory cookie a ďalšie technológie sledovania používame na zlepšenie vášho zážitku z prehliadania našich webových stránok, na to, aby sme vám zobrazovali prispôsobený obsah a cielené reklamy, na analýzu návštevnosti našich webových stránok a na pochopenie toho, odkiaľ naši návštevníci prichádzajú. Viac info

BOSEN | Prenájom kancelárskych priestorov, Pri Smaltovni, Petržalka, 18m2 a 75m2

  • 11 €/m2/mesiac

Základné informácie

Ulica: Pri smaltovni
Mestská časť: Kopčany
Obec: Bratislava-Petržalka
Okres: Bratislava V
Kraj: Bratislavský kraj
Druh: Objekty
Typ: Prenájom
Typ objektu: Kancelárie

BOSEN | Prenájom kancelárskych priestorov, Pri Smaltovni, Petržalka, 18m2 a 75m2

Popis nehnuteľnosti

Bosen Group Vám ponúka na prenájom výborne situované kancelárske priestory v Bratislave, časť Petržalka na ulici Pri Smaltovni s rozlohou 18m2 a 75m2. Veľkou výhodou sú aktuálne vznikajúce projekty v blízkosti - Matadorka či Nesto.

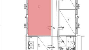
PRIESTORY: Sú situované v dvojpodlažnej budove podľa nákresu, ktorý je súčasťou fotografií. Voľné priestory sú vyznačené červeným podfarbením. Vrámci budovy je prístupná kuchynka, príjemný vnútroblok s altánkom a zasadacia miestnosť (rezervačný systém). Do budovy je privedený optický internet, každá z kancelárií má svoj. V prípade záujmu sa dopláca 30 EUR/Kancelária.

PARKOVANIE: V blízkosti budovy sa nachádzajú parkovacie miesta pre osobné autá za príplatok - 1 park. miesto je 50 eur/mes - množstvo po dohode s majiteľom. 

LOKALITA: Strategická poloha kancelárskych priestorov ponúka jeho všestranné využitie v súčasnosti, ale aj budúcnosti kvôli neďalekému výjazdu na obchvat Petržalky, ako aj rýchlostnú cestu D2, ktoré odtiaľto zabezpečujú výborné napojenie do všetkých častí BA. 

CENA: 11 eur/m2 bez DPH + energie (približne 30% z ceny nájmu) 

Voľný Ihneď

Realitný maklér: Mrg. art. Nora Žalúdeková

Pre podrobnejšie informácie ma neváhajte kontaktovať.

Realitná kancelária BOSEN GROUP je členom Realitnej únie SR a riadi sa jej Realitným kódexom. Uvedená cena je konečná, zahŕňa províziu realitnej kancelárie a právny servis zabezpečovaný advokátskou kanceláriou.
 

BLIŽŠIE INFO

Status:
aktívne
Vlastníctvo:
firemné
Stav:
úplne prerobený
Celková plocha:
37 m2
Úžitková plocha:
37 m2
Počet podlaží:
2
Kanalizácia:
áno
Internet:
optika
Materiál:
tehla
 

MAKLÉR

Mgr.art. Nora Žalúdeková, RSc.

realitný maklér

Radi Vám poradíme

 

Podobné nehnuteľnosti