
Ulica: | Cementárska |
---|---|
Obec: | Stupava |
Okres: | Malacky |
Kraj: | Bratislavský kraj |
Druh: | Byty |
Typ: | Predaj |
Typ bytu: | 3-izbový byt |
Bosen Group vám exkluzívne ponúka na predaj moderný 3-izbový byt s priestrannou terasou, ktorý sa nachádza v novom projekte Noemis na Cementárskej ulici v Stupave.
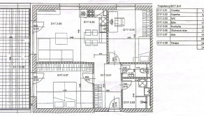
Byt: Byt má úžitkovú plochu 64,23 m², k nemu prislúcha terasa o výmere 24 m² a pivnica s rozlohou 1,90 m². Nachádza sa na ideálnom 2. poschodí zo 4., v bytovom dome s výťahom. K bytu nutnosť zakúpiť dve garážové státia v podzemnej garáži.
Bytový dom bol skolaudovaný v roku 2024, čo zaručuje bývanie v úplne novom a modernom prostredí.
Dispozícia: Byt je veľmi dobre riešený – zo vstupnej chodby sa dostanete do kúpeľne, samostatnej toalety, obývacej izby spojenej s kuchynskou časťou a výstupom na terasu, ako aj do dvoch samostatných izieb, pričom z jednej z nich je taktiež vstup na terasu. Terasa je situovaná na juh, čo zabezpečuje presvetlenie bytu aj terasy po celý rok.
Zariadenie: Byt sa predáva v kvalitnom štandarde, ktorý zahŕňa kuchynskú linku so vstavanými spotrebičmi značky Electrolux, bezpečnostné vstupné dvere, laminátové podlahy, dlažbu, komplet sanitu vrátane walk-in sprchového kúta, plastové okná s izolačným trojsklom, teplovodné podlahové kúrenie a keramickú dlažbu na terase.
Cena: 229 990,-€ byt
2x garážové státie: 2x 10 000,-€ /Predaj výhradne spolu/
Lokalita: Stupava sa rozprestiera medzi západnými svahmi Malých Karpát a južnou časťou Záhorskej nížiny. Je to moderné mesto s nízkymi nákladmi na život, s kompletnou občianskou vybavenosťou. Tento byt je ideálnou voľbou pre každého, kto hľadá komfortné a nadčasové bývanie v príjemnom prostredí s výbornou dostupnosťou do Bratislavy.
Realitný maklér: Ivan Margetíny, +421 905 612 389, margetiny@bosen.sk
Realitná kancelária Bosen Group je členom Realitnej únie SR a riadi sa jej Realitným kódexom. Uvedená cena je konečná, zahŕňa províziu realitnej kancelárie, právny servis zabezpečovaný advokátskou kanceláriou, úhradu základného správneho poplatku na katastri, poradenstvo k prevodu nehnuteľnosti a bezplatnú ponuka financovania prostredníctvom hypotéky.