 
								| Ulica: | Pri Hrubej Lúke | 
|---|---|
| Obec: | Bratislava-Dúbravka | 
| Okres: | Bratislava IV | 
| Kraj: | Bratislavský kraj | 
| Druh: | Byty | 
| Typ: | Predaj | 
| Typ bytu: | 2-izbový byt | 
Bosen Group Vám exkluzívne ponúka na predaj 2 izbový byt v projekte TAMMI od developera YIT, ulica Pri Hrubej Lúke, Bratislava – mestská časť Dúbravka.
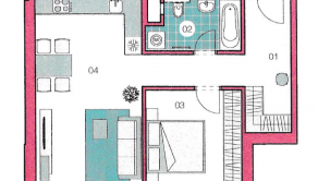
BYT: Byt má výmeru 53,11 m2 z čoho pivničná kobka tvorí 1,63 m2. Nachádza sa v bytovom dome z roku 2016 na 1. poschodí (pod bytom sa nachádza ešte jedno obytné podlažie). Byt je orientovaný na juhovýchodnú stranu a nedisponuje balkónom. Výhodou tohto bytu je aj možnosť využívania sauny, ktorá je k dispozícii vlastníkom bytov a taktiež množstvo parkovacích miest pred bytovým domom (na pozemku máte spoluvlastnícky podiel), čiže nie je nevyhnutné si parkovacie miesto dokupovať.
DISPOZÍCIA: Vstupná chodba s priestorom na šatník, obývacia časť spojená s kuchyňou, spálňa, kúpeľňa s vaňou a WC.
ZARIADENIE: Byt sa predáva v štandarde: bezpečnostné vstupné dvere, laminátové podlahy, plastové okna s trojsklom, komplet sanita, interiérové dvere.
PARKOVANIE: Parkovacie miesta pred bytovým domom.
LOKALITA: Priamo v areáli bytového domu sa nachádza detské ihrisko s ohniskom len pre vlastníkov bytov v projekte TAMMI. Vynikajúca lokalita s kompletnou občianskou vybavenosťou v pešej dostupnosti. V okolí bytového domu sa nachádzajú školy, škôlky, reštaurácie, kaviarne, obchodné centrum DUBRAWA, obchodný dom SARATOV so širokou ponukou služieb, zdravotné stredisko, lekáreň, pošta, MHD, široké možnosti kultúrneho a športového vyžitia. Neďaleko sa nachádza nákupné centrum Bory Mall. Dúbravka je ideálnym miestom pre ľudí, ktorí hľadajú mestský spôsob bývania, ale zároveň majú radi kontakt s prírodou, nakoľko na dosah tu sú lesy Devínskej Kobyly.
CENA: 209.990 € byt + 2.000 € pivničná kobka
Realitná kancelária Bosen Group je členom Realitnej únie SR a riadi sa jej Realitným kódexom. Uvedená cena je konečná, zahŕňa províziu realitnej kancelárie, právny servis zabezpečovaný advokátskou kanceláriou, úhradu základného správneho poplatku na katastri, poradenstvo k prevodu nehnuteľnosti a bezplatnú ponuku financovania prostredníctvom hypotéky.
