Používame cookies

Súbory cookie a ďalšie technológie sledovania používame na zlepšenie vášho zážitku z prehliadania našich webových stránok, na to, aby sme vám zobrazovali prispôsobený obsah a cielené reklamy, na analýzu návštevnosti našich webových stránok a na pochopenie toho, odkiaľ naši návštevníci prichádzajú. Viac info

BOSEN | 2 izbový byt s loggiou v centre Fiľakova, 65m2

Základné informácie

Ulica: Biskupická
Obec: Fiľakovo
Okres: Lučenec
Kraj: Banskobystrický kraj
Druh: Byty
Typ: Predaj
Typ bytu: 2-izbový byt

BOSEN | 2 izbový byt s loggiou v centre Fiľakova, 65m2

Popis nehnuteľnosti

Realitná kancelária Bosen Lučenec exkluzívne ponúka na predaj priestranný 2-izbový byt s loggiou v najžiadanejšom bytovom dome v absolútnom centre Fiľakova, na Biskupickej ulici. Byt sa nachádza na 4. z 5 poschodí v zateplenom bytovom dome s výťahom a je v pôvodnom stave – ideálna príležitosť na rekonštrukciu podľa vlastných predstáv. Vďaka praktickej dispozícií je možné upraviť aj na 3-izbový byt.

BYT:  Celková výmera bytu je 65m2, nachádza sa v super lokalite. Byt je v pôvodnom stave, ideálny pre tých, ktorí si chcú vytvoriť bývanie podľa vlastných predstáv, oceňujú výbornú polohu, veľkú lodžiu a priestrannosť. Vďaka praktickosti je možné upraviť aj na 3-izbový.

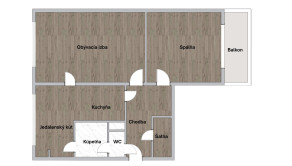
DISPOÍCIA:  Byt pozostáva z priestrannej predsiene, izby, kuchyne s jedálňou priestrannejšej spálni s výstupom na loggiu, kúpeľne, samostatnej toalety a komory priamo v byte, ktorý môže slúžiť aj ako šatník. K bytu prislúcha pivnica na prízemí bytového domu. Nehnuteľnosť ponúka široké možnosti rekonštrukcie – môže vzniknúť moderná obývacia izba prepojená s kuchyňou, priestranná predsieň so šatníkom a krásnou spálňou s loggiou. Vzhľadom na pôvodný stav sme do inzerátu zaradili vizualizácie pre lepšiu predstavu o možnom budúcom riešení interiéru.
Orientácia bytu je na dve svetové strany V/Z

PARKOVANIE: Bezproblémové verejné parkovanie za bytovým domom.

ZARIADENIE: Byt predáva bez zariadení.

LOKALITA:  Bytový dom sa nachádza v srdci Fiľakova, v mimoriadne vyhľadávanej lokalite s množstvom zelene v okolí. V pešej dostupnosti je kompletná občianska vybavenosť – pošta, banky, mestský úrad, hlavná ulica s kaviarňami a reštauráciami. Pre rodiny s deťmi je k dispozícii detské ihrisko za bytovým domom.

VÝHODY:  

  • Vyhľadávaná lokalita, vyhľadávaný bytový dom, veľmi dobré susedstvo.
  • Priestrannosť bytu 65 m2 s možnosťou úpravy na 3 izbový byt.
  • Pôvodný stav ponúka široké možnosti rekonštrukcie.
  • Veľká lodžia. 
  • Špajza. 
  • Byt je po zakúpení ihneď voľný.
  • V meste Fiľakovo je veľký dopyt po nájomných bytoch a preto môže byť tento zaujímavý aj na investičný zámer na prenájom.

V inzeráte sú použité vizualizácie pre lepšiu predstavu možného budúceho stavu tejto nehnuteľnosti.

Realitný maklér:  Vojtech Bari,      Tel:  +421907347770,     Email:  bari@bosen.sk.

Realitná kancelária BOSEN GROUP je členom Realitnej únie SR a riadi sa jej Realitným kódexom. Uvedená cena je konečná, zahŕňa províziu realitnej kancelárie, právny servis zabezpečovaný advokátskou kanceláriou, úhradu základného správneho poplatku na katastri, poradenstvo k prevodu nehnuteľností a bezplatnú ponuku financovania prostredníctvom hypoték.

 

BLIŽŠIE INFO

Status:
aktívne
Vlastníctvo:
osobné
Úžitková plocha:
65 m2
Stav:
pôvodný stav
Typ budovy:
panelová stavba
Loggia:
áno
Pivnica:
áno
Špajza:
áno
Výťah:
áno
Poschodie:
4
Celková plocha:
65 m2
 

INFORMATÍVNA ÚVEROVÁ KALKULAČKA

 

MAKLÉR

Vojtech Bari

manažér

Radi Vám poradíme