
Ulica: | Trnavská cesta |
---|---|
Obec: | Bratislava-Ružinov |
Okres: | Bratislava II |
Kraj: | Bratislavský kraj |
Druh: | Byty |
Typ: | Predaj |
Typ bytu: | 3-izbový byt |
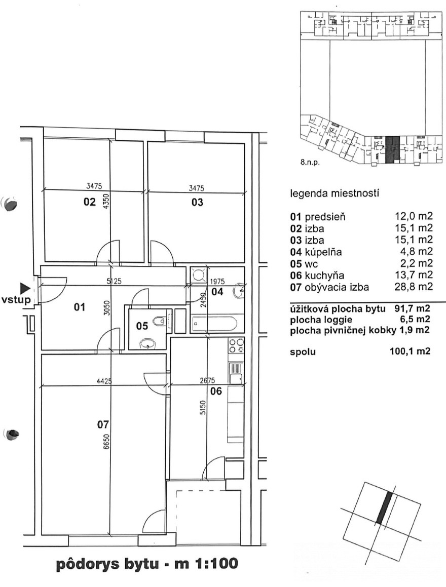
Bosen Group ponúka na predaj skvelý priestranný 3-izbový byt s celkovou plochou 100,1 m² z čoho je 5,2 m2 loggia a 1,89 m2 nachádzajúci sa vo vyhľadávanej lokalite na ulici Trnavská cesta v Bratislave. Byt je zasadený v tichom dvore z oboch strán. Je ideálnou voľbou pre tých, ktorí hľadajú komfortné bývanie v širšom centre Bratislavy s kompletnou vybavenosťou na dosah.
BYT: je vybavený centrálnou klimatizáciou rozvedenou do každej miestnosti, videovrátnikom, dvomi kúpelňami a dvomi toaletami, veľkou loggiou. Francúzske okná otvárajú a presvetľujú každú z izieb.
DISPOZÍCIA: chodba, takmer oddelená kuchyňa, kúpeľňa - vaňa s toaletou, kúpelňa - sprchový kút s toaletou, loggia
Vizualizácie bytu sú ilustračné.
PARKING: 2 parkovacie státia v garáži umistnené hneď pri vchode.
LOKALITA: Trnavská cesta patrí medzi najatraktívnejšie ulice širšieho centra Bratislavy. V bezprostrednej blízkosti nájdete OC Central, Trnavské mýto, športové a kultúrne vyžitie, školy, škôlky, reštaurácie a kompletnú občiansku vybavenosť. Výborná je aj dopravná dostupnosť – električky, autobusy, trolejbusy a rýchle napojenie na diaľnicu i hlavné ťahy mesta.
CENA: 424.900 EUR byt plus dve parkovacie státia v podzemnej garáži a pivničná kobka.
Realitná kancelária BOSEN je členom Realitnej únie SR a riadi sa jej Realitným poriadkom. Uvedená cena je konečná, zahŕňa províziu realitnej kancelárie, právne služby poskytované advokátskou kanceláriou, úhradu základného správneho poplatku na katastri, poradenstvo pri prevode nehnuteľnosti a bezplatnú ponuku financovania prostredníctvom hypotéky.